Перейти к контенту
Подбор и сравнение проектов домов от застройщиков Московской области
Подборщик домов
Калькулятор сметы
Калькулятор площади
Форум
Блог
Главная
›
Каталог проектов
›
Проект M-155-1D
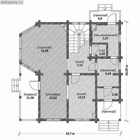
Проект M-155-1D
Застройщик: Юникс-Строй
155.75 м²
1 / 3
🏠
155.75 м²
📐
2 этаж
🧱
Дерево
Похожие проекты
Похожие по цене
Похожие по площади
Проект G-285-1K
3 этаж
от 23 370 000 ₽
→
Проект дома W-334-1P
2 этаж
от 23 373 000 ₽
→
Проект дома «Вебер»
2 спальн. · 1 этаж
от 23 350 000 ₽
→
Проект G-156-1P
2 этаж
от 10 901 800 ₽
→
Каркасный дом «Пихта» | ЭкоТех
3 спальн. · 2 санузл. · 2 этаж
от 8 023 000 ₽
→
Проект дома «Роленд»
4 спальн. · 1 этаж
от 13 113 000 ₽
→
На сайт застройщика