Перейти к контенту
Подбор и сравнение проектов домов от застройщиков Московской области
Подборщик домов
Калькулятор сметы
Калькулятор площади
Форум
Блог
Главная
›
Каталог проектов
›
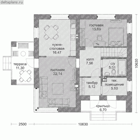
Проект M-165-1P
Проект M-165-1P
Застройщик: Юникс-Строй
165.28 м²
1 / 3
🏠
165.28 м²
📐
2 этаж
🧱
Пеноблок
Похожие проекты
Похожие по цене
Похожие по площади
Проект дома «Сакс»
6 спальн. · 2 этаж
от 11 570 000 ₽
→
Проект F-165-1P
2 этаж
от 11 571 000 ₽
→
Проект одноэтажного коттеджа "Эсмиральда" из газобетона
5 спальн. · 2 этаж
от 11 574 000 ₽
→
Проект F-165-1P
2 этаж
от 11 571 000 ₽
→
Проект двухэтажного дома "Линкольн" из бруса
3 спальн. · 2 этаж
от 11 680 528 ₽
→
Проект дома «Граймс»
3 спальн. · 1 этаж
от 13 903 000 ₽
→
На сайт застройщика