Перейти к контенту
Подбор и сравнение проектов домов от застройщиков Московской области
Подборщик домов
Калькулятор сметы
Калькулятор площади
Форум
Блог
Главная
›
Каталог проектов
›
Проект M-167-2P
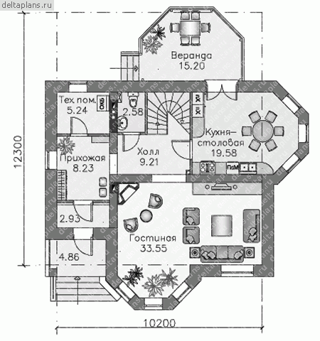
Проект M-167-2P
Застройщик: Юникс-Строй
172.8 м²
1 / 3
🏠
172.8 м²
📐
2 этаж
🧱
Пеноблок
Похожие проекты
Похожие по цене
Похожие по площади
Дом в классическом стиле «Белвуар»
4 спальн. · 2 санузл. · 2 этаж
от 12 102 000 ₽
→
Проект L-173-1P
2 этаж
от 12 089 000 ₽
→
Проект К-209 11 на 17, площадью 360 за 12 104 250 руб
5 спальн. · 2 этаж
от 12 104 250 ₽
→
Проект M-172-1D
2 этаж
от 25 923 000 ₽
→
Проект двухэтажного дома "Велес-3" из бруса
3 спальн. · 3 этаж
от 12 600 570 ₽
→
Проект L-173-1P
2 этаж
от 12 089 000 ₽
→
На сайт застройщика