Перейти к контенту
Подбор и сравнение проектов домов от застройщиков Московской области
Подборщик домов
Калькулятор сметы
Калькулятор площади
Форум
Блог
Главная
›
Каталог проектов
›
Проект M-177-1D
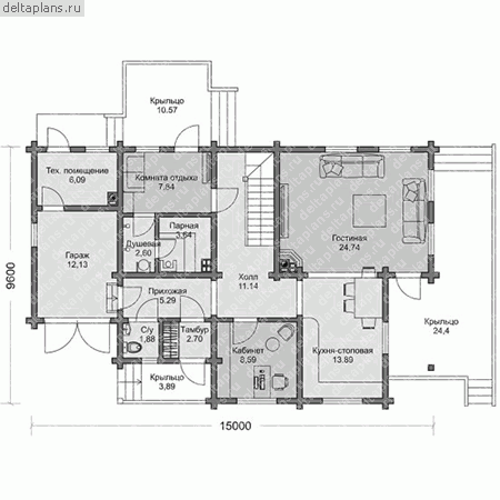
Проект M-177-1D
Застройщик: Юникс-Строй
177.57 м²
1 / 3
🏠
177.57 м²
📐
2 этаж
🧱
Дерево
Похожие проекты
Похожие по цене
Похожие по площади
Дом по проекту «ЗС 242-18» - Золотое Сечение
3 спальн. · 3 санузл.
от 26 625 000 ₽
→
Проект U-325-1K
2 этаж
от 26 623 760 ₽
→
Проект A-380-1P
3 этаж
от 26 647 600 ₽
→
Проект дома «Принс»
4 спальн. · 2 этаж
от 8 436 000 ₽
→
Проект дома из газоблоков 11х12 ГББ-177: цена 9081000 руб.
4 спальн. · 3 санузл. · 2 этаж
от 12 503 000 ₽
→
Проект дома из керамоблоков 11х11 ТКБ-177: цена 9452000 руб.
4 спальн. · 3 санузл. · 2 этаж
от 13 695 000 ₽
→
На сайт застройщика