Перейти к контенту
Подбор и сравнение проектов домов от застройщиков Московской области
Подборщик домов
Калькулятор сметы
Калькулятор площади
Форум
Блог
Главная
›
Каталог проектов
›
Проект M-184-1P
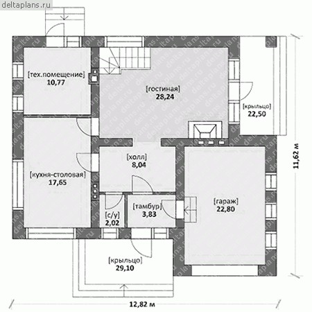
Проект M-184-1P
Застройщик: Юникс-Строй
184.02 м²
1 / 3
🏠
184.02 м²
📐
2 этаж
🧱
Пеноблок
Похожие проекты
Похожие по цене
Похожие по площади
Проект одноэтажного дома "Митино" из бруса
4 спальн. · 2 этаж
от 12 883 382 ₽
→
Проект дома из керамоблоков 18х16 ТКБ-173: цена 9474000 руб.
3 спальн. · 2 санузл. · 1 этаж
от 12 884 000 ₽
→
Проект B-185-1P
2 этаж
от 12 887 000 ₽
→
Проект одноэтажного каркасного дома "Меркур"
5 спальн. · 2 этаж
от 13 167 317 ₽
→
Дом по проекту «ЗС 104-22» - Золотое Сечение
4 спальн. · 2 санузл.
от 23 000 000 ₽
→
Дом по проекту «ЗС 921-21» - Золотое Сечение
5 спальн. · 2 санузл.
от 23 000 000 ₽
→
На сайт застройщика