Перейти к контенту
Подбор и сравнение проектов домов от застройщиков Московской области
Подборщик домов
Калькулятор сметы
Калькулятор площади
Форум
Блог
Главная
›
Каталог проектов
›
Проект M-190-1P
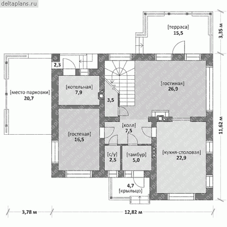
Проект M-190-1P
Застройщик: Юникс-Строй
190.3 м²
1 / 3
🏠
190.3 м²
📐
2 этаж
🧱
Пеноблок
Похожие проекты
Похожие по цене
Похожие по площади
Проект одноэтажного дома "Голованово-3" из бруса
5 спальн. · 2 этаж
от 13 320 434 ₽
→
Проект R-191-1P
2 этаж
от 13 321 700 ₽
→
Проект дома «Тор»
4 спальн. · 2 этаж
от 13 315 000 ₽
→
Проект S-191-1K
2 этаж
от 15 604 600 ₽
→
Проект R-191-1P
2 этаж
от 13 321 700 ₽
→
Проект дома из газоблоков 10х15 ГББ-190: цена 8288000 руб.
5 спальн. · 2 санузл. · 2 этаж
от 12 327 000 ₽
→
На сайт застройщика