Перейти к контенту
Подбор и сравнение проектов домов от застройщиков Московской области
Подборщик домов
Калькулятор сметы
Калькулятор площади
Форум
Блог
Главная
›
Каталог проектов
›
Проект M-192-1D
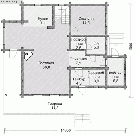
Проект M-192-1D
Застройщик: Юникс-Строй
192.7 м²
1 / 3
🏠
192.7 м²
📐
2 этаж
🧱
Дерево
Похожие проекты
Похожие по цене
Похожие по площади
Проект J-353-1K
3 этаж
от 28 913 200 ₽
→
Большой двухэтажный дом «Кирктон» в стиле Модерн
6 спальн. · 4 санузл. · 2 этаж
от 28 914 000 ₽
→
Проект N-353-1K
3 этаж
от 28 915 660 ₽
→
Проект одноэтажного коттеджа "Любава" из газобетона
3 спальн. · 2 этаж
от 11 664 000 ₽
→
Проект дома из керамоблоков 19х14 ТКБ-192: цена 10765000 руб.
4 спальн. · 3 санузл. · 1 этаж
от 14 649 000 ₽
→
Проект A-314-1K
3 этаж
от 15 799 760 ₽
→
На сайт застройщика