Перейти к контенту
Подбор и сравнение проектов домов от застройщиков Московской области
Подборщик домов
Калькулятор сметы
Калькулятор площади
Форум
Блог
Главная
›
Каталог проектов
›
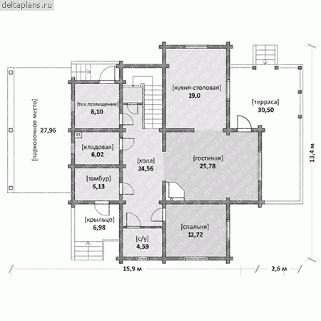
Проект M-196-1D
Проект M-196-1D
Застройщик: Юникс-Строй
196.66 м²
1 / 3
🏠
196.66 м²
📐
2 этаж
🧱
Дерево
Похожие проекты
Похожие по цене
Похожие по площади
Дом по проекту «ЗС 5-16» - Золотое Сечение
2 спальн. · 2 санузл.
от 29 500 000 ₽
→
Проект «Faster»
от 29 500 000 ₽
→
Проект «Faster»
от 29 500 000 ₽
→
Проект одноэтажного дома "Ирга" из бруса
4 спальн. · 2 этаж
от 14 048 635 ₽
→
Проект F-195-1K
2 санузл. · 2 этаж
от 16 124 480 ₽
→
Проект U-196-1K
2 этаж
от 16 127 760 ₽
→
На сайт застройщика