Перейти к контенту
Подбор и сравнение проектов домов от застройщиков Московской области
Подборщик домов
Калькулятор сметы
Калькулятор площади
Форум
Блог
Главная
›
Каталог проектов
›
Проект M-199-1K
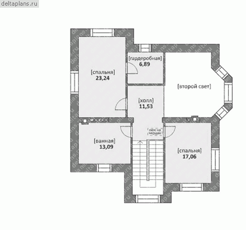
Проект M-199-1K
Застройщик: Юникс-Строй
199.85 м²
1 / 3
🏠
199.85 м²
📐
2 этаж
🧱
Кирпич
Похожие проекты
Похожие по цене
Похожие по площади
Проект U-234-1P
2 этаж
от 16 380 000 ₽
→
Проект дома D-234-1P
3 этаж
от 16 380 000 ₽
→
Дом Новосходненский из газобетона: заказать в Москве по низкой цене
4 спальн. · 4 санузл. · 2 этаж
от 16 400 000 ₽
→
Проект одноэтажного дома "Романово-1" из бревна
2 спальн. · 2 этаж
от 9 522 266 ₽
→
СК-3
5 спальн. · 3 санузл. · 1 этаж
от 12 450 000 ₽
→
Проект двухэтажного коттеджа "Гжельское" из газобетона
3 спальн. · 2 этаж
от 9 917 000 ₽
→
На сайт застройщика