Перейти к контенту
Подбор и сравнение проектов домов от застройщиков Московской области
Подборщик домов
Калькулятор сметы
Калькулятор площади
Форум
Блог
Главная
›
Каталог проектов
›
Проект M-207-1K
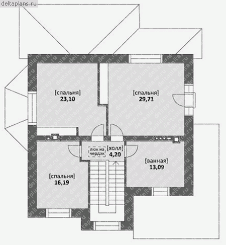
Проект M-207-1K
Застройщик: Юникс-Строй
207.18 м²
1 / 3
🏠
207.18 м²
📐
2 этаж
🧱
Кирпич
Похожие проекты
Похожие по цене
Похожие по площади
АС-4
6 спальн. · 1 этаж
от 16 990 000 ₽
→
Проект E-243-1P
2 этаж
от 16 984 100 ₽
→
Дом по проекту «ЗС 139-14» - Золотое Сечение
3 спальн. · 2 санузл.
от 17 000 000 ₽
→
Проект дома E-204-1P
2 этаж
от 14 501 900 ₽
→
Проект G-207-1P
2 этаж
от 14 511 000 ₽
→
Проект G-248-1P
2 этаж
от 14 511 000 ₽
→
На сайт застройщика