Перейти к контенту
Подбор и сравнение проектов домов от застройщиков Московской области
Подборщик домов
Калькулятор сметы
Калькулятор площади
Форум
Блог
Главная
›
Каталог проектов
›
Проект M-212-1K
Проект M-212-1K
Застройщик: Юникс-Строй
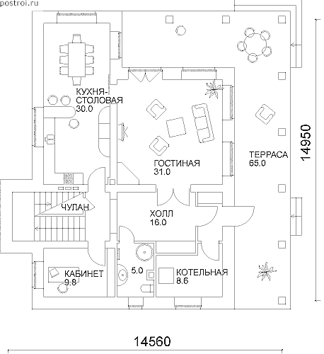
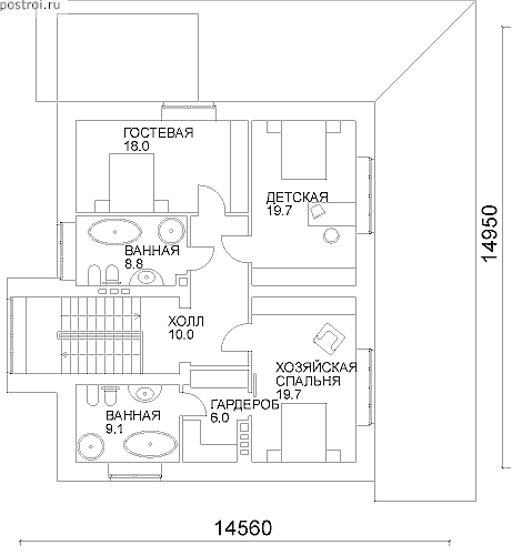
212.0 м²
1 / 3
🏠
212.0 м²
📐
2 этаж
🧱
Кирпич
Похожие проекты
Похожие по цене
Похожие по площади
Проект T-166-3P
3 этаж
от 17 388 000 ₽
→
Дом по проекту «Вайдхаус» - Золотое Сечение
3 спальн. · 2 санузл.
от 17 375 000 ₽
→
Дом по проекту «Райнсхоф» - Золотое Сечение
2 спальн. · 2 санузл.
от 17 375 000 ₽
→
Проект одноэтажного дома "Оригами-7" из бруса
2 спальн. · 2 этаж
от 14 945 932 ₽
→
Дом по проекту «ЗС 191-23» - Золотое Сечение
3 спальн. · 2 санузл.
от 26 500 000 ₽
→
Проект К-142 10 на 11, площадью 212 за 7 126 500 руб
3 спальн. · 2 этаж
от 7 126 500 ₽
→
На сайт застройщика