Перейти к контенту
Подбор и сравнение проектов домов от застройщиков Московской области
Подборщик домов
Калькулятор сметы
Калькулятор площади
Форум
Блог
Главная
›
Каталог проектов
›
Проект M-220-1P
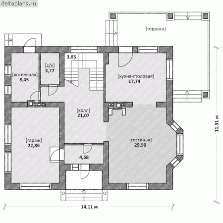
Проект M-220-1P
Застройщик: Юникс-Строй
220.51 м²
1 / 3
🏠
220.51 м²
📐
2 этаж
🧱
Пеноблок
Похожие проекты
Похожие по цене
Похожие по площади
Проект R-293-1K
2 этаж
от 15 436 500 ₽
→
Проект V-220-1P
2 этаж
от 15 437 800 ₽
→
Проект двухэтажного дома "Климово" из бруса
4 спальн. · 2 этаж
от 15 440 698 ₽
→
Проект двухэтажного коттеджа "Сандал" из газобетона
5 спальн. · 2 этаж
от 10 024 000 ₽
→
Проект V-220-1P
2 этаж
от 15 437 800 ₽
→
Проект дома AS-2065
2 этаж
от 9 014 000 ₽
→
На сайт застройщика