Перейти к контенту
Подбор и сравнение проектов домов от застройщиков Московской области
Подборщик домов
Калькулятор сметы
Калькулятор площади
Форум
Блог
Главная
›
Каталог проектов
›
Проект M-225-1D
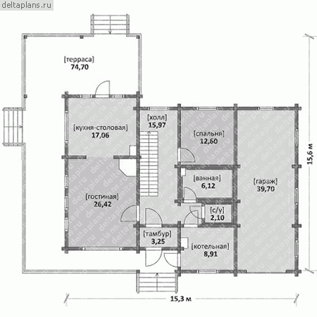
Проект M-225-1D
Застройщик: Юникс-Строй
225.67 м²
1 / 3
🏠
225.67 м²
📐
2 этаж
🧱
Дерево
Похожие проекты
Похожие по цене
Похожие по площади
Проект E-412-1K
3 этаж
от 33 841 400 ₽
→
Проект N-412-1K
3 этаж
от 33 816 800 ₽
→
Проект Q-226-1D
2 этаж
от 33 900 000 ₽
→
Ривьера 3
3 санузл. · 2 этаж
от 6 699 800 ₽
→
Наследник 3
4 спальн. · 3 санузл. · 2 этаж
от 9 669 800 ₽
→
Проект одноэтажного коттеджа "Оттава" из газобетона
3 спальн. · 2 этаж
от 13 342 000 ₽
→
На сайт застройщика