Перейти к контенту
Подбор и сравнение проектов домов от застройщиков Московской области
Подборщик домов
Калькулятор сметы
Калькулятор площади
Форум
Блог
Главная
›
Каталог проектов
›
Проект M-243-1K
Проект M-243-1K
Застройщик: Юникс-Строй
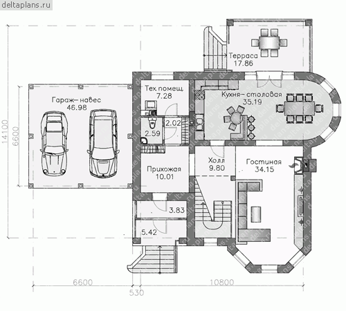
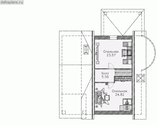
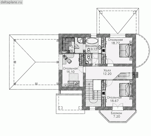
249.48 м²
1 / 4
🏠
249.48 м²
📐
3 этаж
🧱
Кирпич
Похожие проекты
Похожие по цене
Похожие по площади
Проект J-250-1K
2 этаж
от 20 459 000 ₽
→
Кирпичный дом С-461 К «Новый Рассвет»
4 спальн. · 3 санузл. · 4 этаж
от 20 467 000 ₽
→
Проект K-292-1P
3 этаж
от 20 440 000 ₽
→
Проект G-249-1P
2 этаж
от 17 465 000 ₽
→
Проект J-250-1K
2 этаж
от 20 459 000 ₽
→
Проект просторного двухэтажного особняка КУБ
4 спальн. · 3 санузл. · 2 этаж
от 26 723 500 ₽
→
На сайт застройщика