Перейти к контенту
Подбор и сравнение проектов домов от застройщиков Московской области
Подборщик домов
Калькулятор сметы
Калькулятор площади
Форум
Блог
Главная
›
Каталог проектов
›
Проект M-266-1K
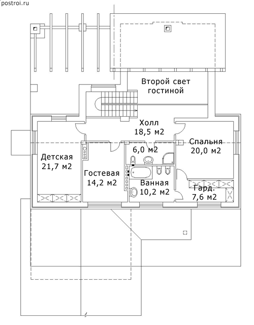
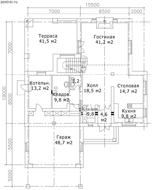
Проект M-266-1K
Застройщик: Юникс-Строй
265.7 м²
1 / 3
🏠
265.7 м²
📐
2 этаж
🧱
Кирпич
Похожие проекты
Похожие по цене
Похожие по площади
Резиденция в стиле Шале «Торнесс»
3 спальн. · 3 санузл. · 2 этаж
от 21 792 000 ₽
→
Проект дома «Рэйкс»
3 спальн. · 1 этаж
от 21 778 000 ₽
→
Двухэтажный дом с цоколем и террасой «Дудвиль»
7 спальн. · 6 санузл. · 1 этаж
от 21 774 000 ₽
→
Проект дома K-266-1P
2 этаж
от 18 606 000 ₽
→
Проект двухэтажного дома "Лоретт" из бруса
4 спальн. · 2 этаж
от 18 496 764 ₽
→
Проект V-266-1P
3 этаж
от 18 587 800 ₽
→
На сайт застройщика