Перейти к контенту
Подбор и сравнение проектов домов от застройщиков Московской области
Подборщик домов
Калькулятор сметы
Калькулятор площади
Форум
Блог
Главная
›
Каталог проектов
›
Проект M-286-1K
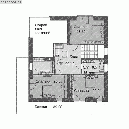
Проект M-286-1K
Застройщик: Юникс-Строй
286.0 м²
1 / 3
🏠
286.0 м²
📐
2 этаж
🧱
Кирпич
Похожие проекты
Похожие по цене
Похожие по площади
Проект дома A-335-1P
3 этаж
от 23 450 000 ₽
→
Проект S-286-1K
2 этаж
от 23 476 600 ₽
→
Проект U-286-1K
2 этаж
от 23 424 120 ₽
→
Дом по проекту «ЗС 20-17» - Золотое Сечение
6 спальн. · 4 санузл.
от 35 750 000 ₽
→
Проект Stettler
2 спальн. · 3 санузл. · 1 этаж
от 14 298 000 ₽
→
Проект Stettler
2 спальн. · 3 санузл. · 1 этаж
от 14 298 000 ₽
→
На сайт застройщика