Перейти к контенту
Подбор и сравнение проектов домов от застройщиков Московской области
Подборщик домов
Калькулятор сметы
Калькулятор площади
Форум
Блог
Главная
›
Каталог проектов
›
Проект M-293-1K
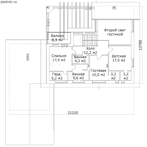
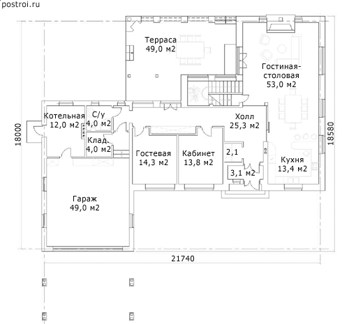
Проект M-293-1K
Застройщик: Юникс-Строй
292.4 м²
1 / 3
🏠
292.4 м²
📐
2 этаж
🧱
Кирпич
Похожие проекты
Похожие по цене
Похожие по площади
Проект M-292-1K
2 этаж
от 23 985 000 ₽
→
Проект Y-197-1D
1 этаж
от 23 940 000 ₽
→
Проект D-160-1D
2 этаж
от 24 015 000 ₽
→
Проект двухэтажного коттеджа "Шафран КД" из газобетона
5 спальн. · 2 этаж
от 14 263 000 ₽
→
Проект M-292-1K
2 этаж
от 23 985 000 ₽
→
Проект F-304-1P
3 этаж
от 20 476 400 ₽
→
На сайт застройщика