Перейти к контенту
Подбор и сравнение проектов домов от застройщиков Московской области
Подборщик домов
Калькулятор сметы
Калькулятор площади
Форум
Блог
Главная
›
Каталог проектов
›
Проект M-300-1K
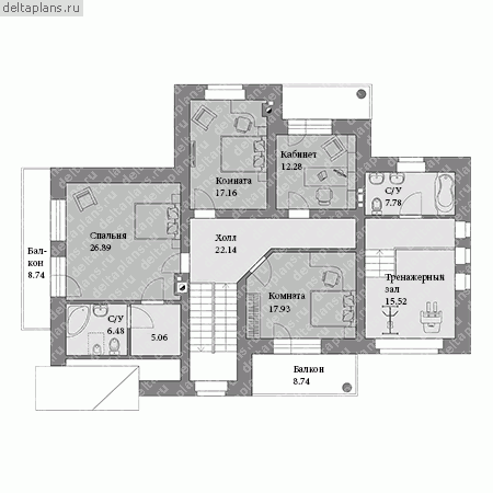
Проект M-300-1K
Застройщик: Юникс-Строй
300.07 м²
1 / 3
🏠
300.07 м²
📐
2 этаж
🧱
Кирпич
Похожие проекты
Похожие по цене
Похожие по площади
Современный дом «Истон» с плоской крышей
5 спальн. · 4 санузл. · 2 этаж
от 24 600 000 ₽
→
Проект A-300-1K
2 этаж
от 24 600 000 ₽
→
Проект N-300-1K
2 этаж
от 24 624 600 ₽
→
Проект двухэтажного коттеджа "Поло" из газобетона
9 спальн. · 3 этаж
от 10 713 000 ₽
→
Проект одноэтажного каркасного дома "Рея"
5 спальн. · 2 этаж
от 22 444 290 ₽
→
Проект К-180 17 на 9, площадью 300 за 10 050 750 руб
4 спальн. · 2 этаж
от 10 050 750 ₽
→
На сайт застройщика