Перейти к контенту
Подбор и сравнение проектов домов от застройщиков Московской области
Подборщик домов
Калькулятор сметы
Калькулятор площади
Форум
Блог
Главная
›
Каталог проектов
›
Проект M-321-1K
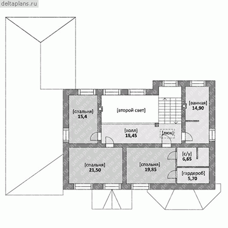
Проект M-321-1K
Застройщик: Юникс-Строй
320.4 м²
1 / 3
🏠
320.4 м²
📐
2 этаж
🧱
Кирпич
Похожие проекты
Похожие по цене
Похожие по площади
Проект дома H-375-1P
3 этаж
от 26 275 900 ₽
→
Проект D-175-1D
2 этаж
от 26 280 000 ₽
→
Проект S-320-1K
3 этаж
от 26 264 600 ₽
→
Проект S-320-1K
3 этаж
от 26 264 600 ₽
→
Проект двухэтажного коттеджа "Наварро" из газобетона
5 спальн. · 2 этаж
от 14 210 000 ₽
→
Проект одноэтажного дома "Брют" из бруса
6 спальн. · 2 этаж
от 22 205 084 ₽
→
На сайт застройщика