Перейти к контенту
Подбор и сравнение проектов домов от застройщиков Московской области
Подборщик домов
Калькулятор сметы
Калькулятор площади
Форум
Блог
Главная
›
Каталог проектов
›
Проект M-344-1K
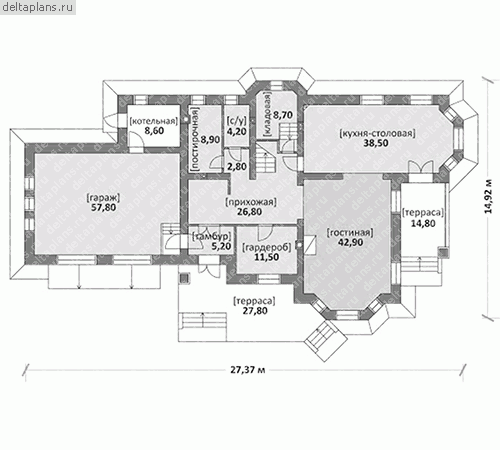
Проект M-344-1K
Застройщик: Юникс-Строй
344.5 м²
1 / 3
🏠
344.5 м²
📐
2 этаж
🧱
Кирпич
Похожие проекты
Похожие по цене
Похожие по площади
Проект U-344-1K
2 этаж
от 28 249 820 ₽
→
Современный дом с террасой «BROWNWOOD»
3 спальн. · 4 санузл. · 2 этаж
от 28 248 000 ₽
→
Проект G-188-1D
4 санузл. · 2 этаж
от 28 275 000 ₽
→
Проект U-344-1K
2 этаж
от 28 249 820 ₽
→
Проект одноэтажного коттеджа "Лидер" из газобетона
4 спальн. · 1 этаж
от 28 704 000 ₽
→
Проект дома из газоблоков 18х21 ГББ-343: цена 12720000 руб.
4 спальн. · 3 санузл. · 2 этаж
от 18 857 000 ₽
→
На сайт застройщика