Перейти к контенту
Подбор и сравнение проектов домов от застройщиков Московской области
Подборщик домов
Калькулятор сметы
Калькулятор площади
Форум
Блог
Главная
›
Каталог проектов
›
Проект M-348-1K
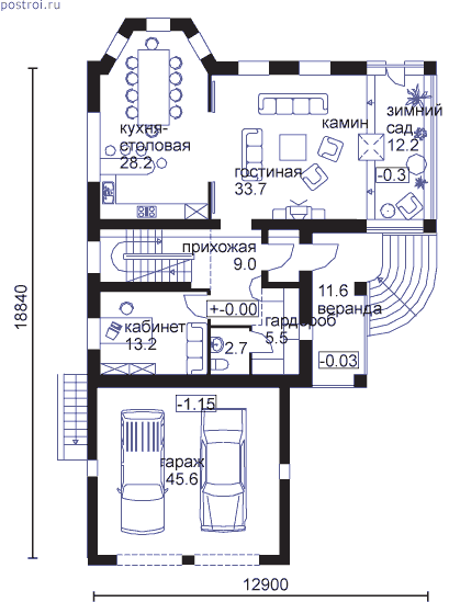
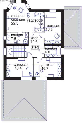
Проект M-348-1K
Застройщик: Юникс-Строй
348.0 м²
1 / 4
🏠
348.0 м²
📐
3 этаж
🧱
Кирпич
Похожие проекты
Похожие по цене
Похожие по площади
Проект E-407-1P
2 этаж
от 28 539 000 ₽
→
Проект W-348-1K
2 этаж
от 28 544 200 ₽
→
Проект V-350-1K
2 этаж
от 28 520 420 ₽
→
Проект К-153 13 на 13, площадью 348 за 11 550 750 руб
7 спальн. · 2 этаж
от 11 550 750 ₽
→
Проект К-153 13 на 13, площадью 348 за 11 550 750 руб
7 спальн. · 2 этаж
от 9 744 000 ₽
→
Проект W-348-1K
2 этаж
от 28 544 200 ₽
→
На сайт застройщика