Перейти к контенту
Подбор и сравнение проектов домов от застройщиков Московской области
Подборщик домов
Калькулятор сметы
Калькулятор площади
Форум
Блог
Главная
›
Каталог проектов
›
Проект M-397-1K
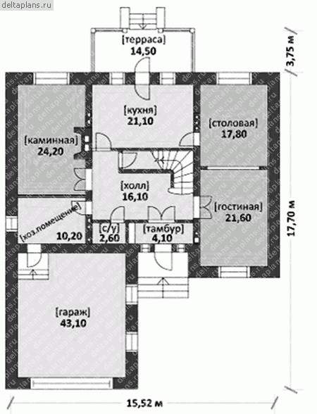
Проект M-397-1K
Застройщик: Юникс-Строй
397.4 м²
1 / 4
🏠
397.4 м²
📐
3 этаж
🧱
Кирпич
Похожие проекты
Похожие по цене
Похожие по площади
Проект E-397-1K
3 этаж
от 32 562 200 ₽
→
Проект Y-219-1D
2 этаж
от 32 611 500 ₽
→
Проект E-217-1D
2 этаж
от 32 550 000 ₽
→
Проект E-397-1K
3 этаж
от 32 562 200 ₽
→
Акварель
5 спальн. · 4 санузл. · 2 этаж
от 19 882 000 ₽
→
Проект U-397-1K
3 этаж
от 32 537 600 ₽
→
На сайт застройщика