Перейти к контенту
Подбор и сравнение проектов домов от застройщиков Московской области
Подборщик домов
Калькулятор сметы
Калькулятор площади
Форум
Блог
Главная
›
Каталог проектов
›
Проект M-486-1K
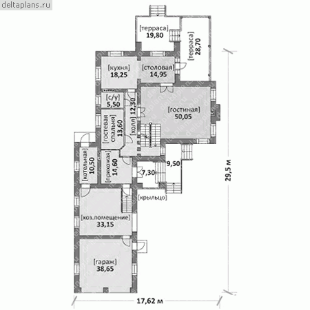
Проект M-486-1K
Застройщик: Юникс-Строй
486.7 м²
1 / 4
🏠
486.7 м²
📐
3 этаж
🧱
Кирпич
Похожие проекты
Похожие по цене
Похожие по площади
Проект N-487-1K
3 этаж
от 39 934 000 ₽
→
Проект S-485-1K
3 этаж
от 39 794 600 ₽
→
Проект U-488-1K
3 этаж
от 40 032 400 ₽
→
Проект N-487-1K
3 этаж
от 39 934 000 ₽
→
Проект L-414-1P
3 этаж
от 34 012 300 ₽
→
Проект S-485-1K
3 этаж
от 39 794 600 ₽
→
На сайт застройщика