Перейти к контенту
Подбор и сравнение проектов домов от застройщиков Московской области
Подборщик домов
Калькулятор сметы
Калькулятор площади
Форум
Блог
Главная
›
Каталог проектов
›
Проект M-501-1K
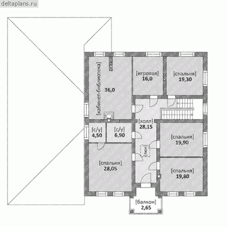
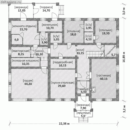
Проект M-501-1K
Застройщик: Юникс-Строй
582.8 м²
1 / 3
🏠
582.8 м²
📐
2 этаж
🧱
Кирпич
Похожие проекты
Похожие по цене
Похожие по площади
Проект «Berger»
5 спальн. · 4 санузл. · 1 этаж
от 47 580 000 ₽
→
Проект «Berger»
5 спальн. · 4 санузл. · 1 этаж
от 47 580 000 ₽
→
Двухэтажный коттедж «Блэквуд» в стиле Хай-Тек
5 спальн. · 7 санузл. · 2 этаж
от 48 084 000 ₽
→
Большая загородная резиденция «Линден»
5 спальн. · 5 санузл. · 2 этаж
от 29 150 000 ₽
→
Двухэтажный дом с гаражом в подвале «Кейл»
3 спальн. · 3 санузл. · 2 этаж
от 35 022 000 ₽
→
Проект «Longtain»
4 спальн. · 4 санузл.
от 29 200 000 ₽
→
На сайт застройщика