Перейти к контенту
Подбор и сравнение проектов домов от застройщиков Московской области
Подборщик домов
Калькулятор сметы
Калькулятор площади
Форум
Блог
Главная
›
Каталог проектов
›
Проект M-558-1K
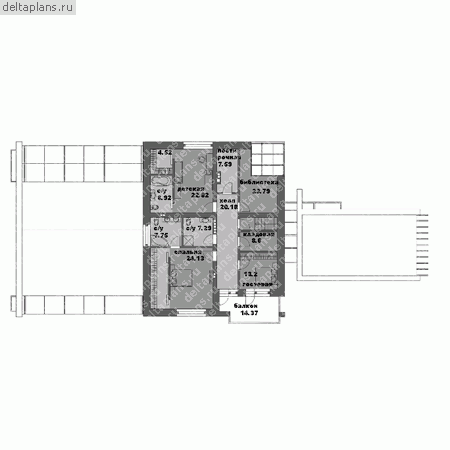
Проект M-558-1K
Застройщик: Юникс-Строй
558.0 м²
1 / 3
🏠
558.0 м²
🚿
6 санузл.
📐
2 этаж
🧱
Кирпич
Похожие проекты
Похожие по цене
Похожие по площади
Проект дома «Reedley»
8 спальн. · 10 санузл.
от 45 725 000 ₽
→
Проект дома «Reedley»
8 спальн. · 10 санузл.
от 45 725 000 ₽
→
Проект S-449-1K
3 этаж
от 45 641 200 ₽
→
Проект трехэтажного каркасного дома "Рудные просторы"
10 спальн. · 3 этаж
от 41 563 500 ₽
→
Проект S-449-1K
3 этаж
от 45 641 200 ₽
→
Проект R-560-1K
3 этаж
от 45 920 000 ₽
→
На сайт застройщика