Перейти к контенту
Подбор и сравнение проектов домов от застройщиков Московской области
Подборщик домов
Калькулятор сметы
Калькулятор площади
Форум
Блог
Главная
›
Каталог проектов
›
Проект M-780-1K
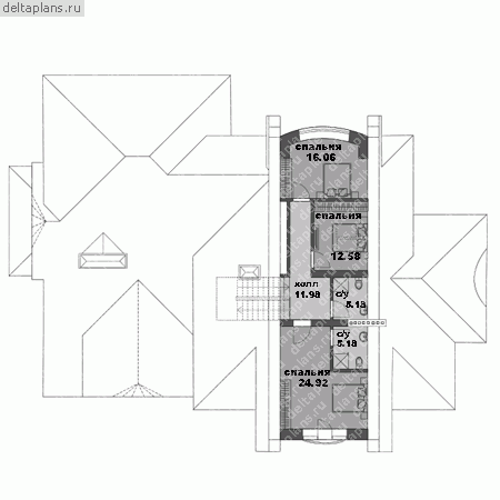
Проект M-780-1K
Застройщик: Юникс-Строй
780.0 м²
1 / 5
🏠
780.0 м²
📐
3 этаж
🧱
Кирпич
Похожие проекты
Похожие по цене
Похожие по площади
Проект «Byron»
8 спальн. · 9 санузл. · 2 этаж
от 64 000 000 ₽
→
Двухэтажная резиденция «Портленд»
3 спальн. · 6 санузл. · 2 этаж
от 63 900 000 ₽
→
Проект S-777-1K
3 этаж
от 63 746 800 ₽
→
Проект «Birkhill»
3 спальн.
от 39 000 000 ₽
→
Резиденция «Биркхилл» с пристроенным SPA домиком
7 спальн. · 7 санузл. · 2 этаж
от 46 794 000 ₽
→
Проект S-777-1K
3 этаж
от 63 746 800 ₽
→
На сайт застройщика