Перейти к контенту
Подбор и сравнение проектов домов от застройщиков Московской области
Подборщик домов
Калькулятор сметы
Калькулятор площади
Форум
Блог
Главная
›
Каталог проектов
›
Проект M-801-1K
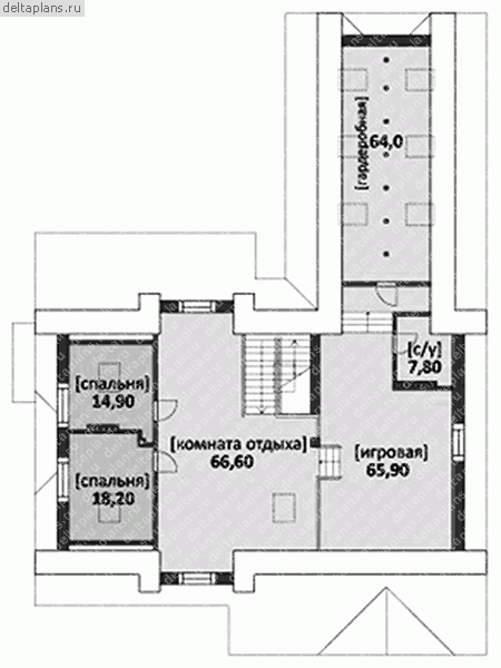
Проект M-801-1K
Застройщик: Юникс-Строй
801.06 м²
1 / 4
🏠
801.06 м²
📐
3 этаж
🧱
Кирпич
Похожие проекты
Похожие по цене
Похожие по площади
Проект S-881-1K
3 этаж
от 65 632 800 ₽
→
Проект S-795-1K
3 этаж
от 65 149 000 ₽
→
Проект E-792-1K
3 этаж
от 64 976 800 ₽
→
Проект «Blackwood»
5 спальн. · 7 санузл. · 2 этаж
от 40 070 000 ₽
→
Проект «Blackwood»
5 спальн. · 7 санузл. · 2 этаж
от 40 070 000 ₽
→
Проект «Blackwood»
5 спальн. · 7 санузл. · 2 этаж
от 40 070 000 ₽
→
На сайт застройщика