Перейти к контенту
Подбор и сравнение проектов домов от застройщиков Московской области
Подборщик домов
Калькулятор сметы
Калькулятор площади
Форум
Блог
Главная
›
Каталог проектов
›
Проект N-157-1K
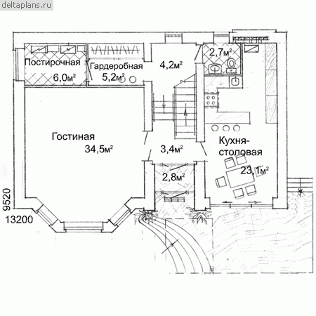
Проект N-157-1K
Застройщик: Юникс-Строй
157.3 м²
1 / 3
🏠
157.3 м²
📐
2 этаж
🧱
Кирпич
Похожие проекты
Похожие по цене
Похожие по площади
«ТОПДОМ 1.260»
1 этаж
от 12 900 000 ₽
→
Проект R-184-1P
2 этаж
от 12 907 300 ₽
→
Проект V-184-1P
2 этаж
от 12 887 700 ₽
→
Проект одноэтажного коттеджа "Ла Каса - 2" из бруса
5 спальн. · 3 этаж
от 12 576 568 ₽
→
Каркасный дом 10,5×8,5 проект «Рубин» Проект "Рубин"
3 спальн. · 1 санузл. · 2 этаж
от 2 730 000 ₽
→
Проект двухэтажного дома "Самсон" из бруса
4 спальн. · 2 этаж
от 11 840 535 ₽
→
На сайт застройщика