Перейти к контенту
Подбор и сравнение проектов домов от застройщиков Московской области
Подборщик домов
Калькулятор сметы
Калькулятор площади
Форум
Блог
Главная
›
Каталог проектов
›
Проект N-170-1P
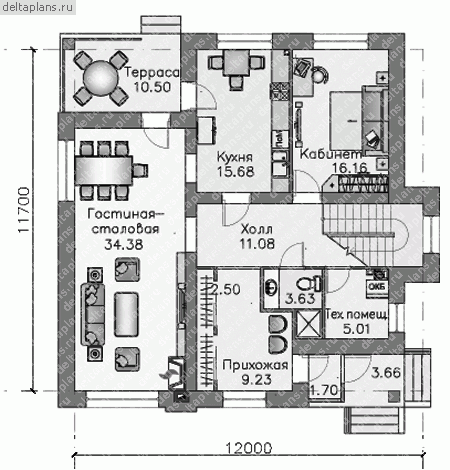
Проект N-170-1P
Застройщик: Юникс-Строй
170.4 м²
1 / 3
🏠
170.4 м²
📐
2 этаж
🧱
Пеноблок
Похожие проекты
Похожие по цене
Похожие по площади
Проект V-170-1P
2 этаж
от 11 928 000 ₽
→
Проект К-236 13 на 14, площадью 356 за 11 932 500 руб
4 спальн. · 2 этаж
от 11 932 500 ₽
→
Проект H-145-1K
2 этаж
от 11 922 800 ₽
→
Проект дома из газоблоков 9х12 ГББ-170: цена 7420000 руб.
4 спальн. · 3 санузл. · 2 этаж
от 11 849 000 ₽
→
Проект дома из керамоблоков 9х12 ТКБ-170: цена 7372000 руб.
4 спальн. · 3 санузл. · 2 этаж
от 12 916 000 ₽
→
Проект V-170-1P
2 этаж
от 11 928 000 ₽
→
На сайт застройщика