Перейти к контенту
Подбор и сравнение проектов домов от застройщиков Московской области
Подборщик домов
Калькулятор сметы
Калькулятор площади
Форум
Блог
Главная
›
Каталог проектов
›
Проект N-178-1P
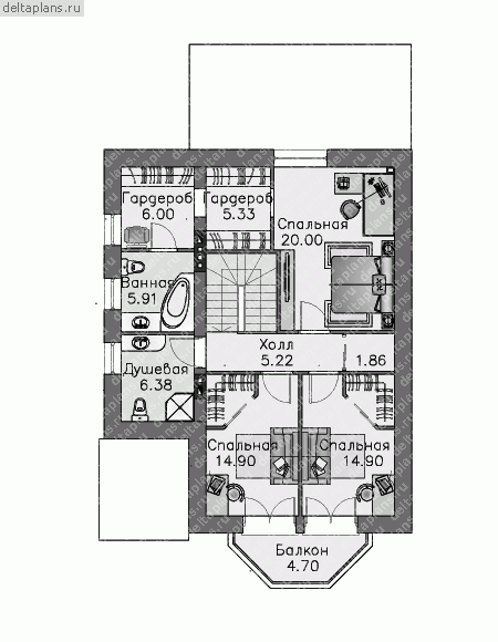
Проект N-178-1P
Застройщик: Юникс-Строй
178.4 м²
1 / 3
🏠
178.4 м²
📐
2 этаж
🧱
Пеноблок
Похожие проекты
Похожие по цене
Похожие по площади
Проект U-152-1K
2 этаж
от 12 488 600 ₽
→
Дом Головково из кирпича: заказать в Москве по низкой цене
4 спальн. · 3 санузл. · 2 этаж
от 12 490 000 ₽
→
Проект одноэтажного дома "Калинка" из бруса
4 спальн. · 2 этаж
от 12 496 565 ₽
→
Дом из газобетонных блоков С-179 ГБ «Бьерн»
3 спальн. · 2 санузл. · 3 этаж
от 8 440 000 ₽
→
Дом из керамических блоков С-179 КЕ «Бьерн»
3 спальн. · 2 санузл. · 3 этаж
от 8 440 000 ₽
→
Кирпичный дом С-179 К «Бьерн»
3 спальн. · 2 санузл. · 3 этаж
от 9 032 000 ₽
→
На сайт застройщика