Перейти к контенту
Подбор и сравнение проектов домов от застройщиков Московской области
Подборщик домов
Калькулятор сметы
Калькулятор площади
Форум
Блог
Главная
›
Каталог проектов
›
Проект N-190-1P
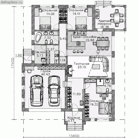
Проект N-190-1P
Застройщик: Юникс-Строй
189.9 м²
1 / 2
🏠
189.9 м²
📐
1 этаж
🧱
Пеноблок
Похожие проекты
Похожие по цене
Похожие по площади
Проект дома A-190-1P
2 этаж
от 13 300 000 ₽
→
Проект V-190-1P
3 этаж
от 13 285 300 ₽
→
Проект A-162-1K
2 этаж
от 13 284 000 ₽
→
Проект дома «Манго» | ЭкоТех
2 спальн. · 1 санузл. · 1 этаж
от 7 795 000 ₽
→
СВ-3
5 спальн. · 3 санузл.
от 10 900 000 ₽
→
Проект одноэтажного каркасного дома "Чери"
6 спальн. · 2 этаж
от 13 861 427 ₽
→
На сайт застройщика