Перейти к контенту
Подбор и сравнение проектов домов от застройщиков Московской области
Подборщик домов
Калькулятор сметы
Калькулятор площади
Форум
Блог
Главная
›
Каталог проектов
›
Проект N-204-1K
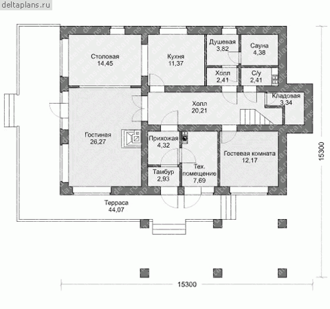
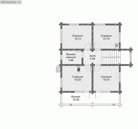
Проект N-204-1K
Застройщик: Юникс-Строй
204.47 м²
1 / 3
🏠
204.47 м²
📐
2 этаж
🧱
Кирпич
Похожие проекты
Похожие по цене
Похожие по площади
Проект L-204-1K
2 этаж
от 16 765 720 ₽
→
Проект двухэтажного дома "Нонейм" из бруса
4 спальн. · 2 этаж
от 16 760 758 ₽
→
Проект двухэтажного коттеджа "Соломон" из газобетона
6 спальн. · 2 этаж
от 16 758 000 ₽
→
Проект L-204-1K
2 этаж
от 16 765 720 ₽
→
Проект L-204-1P
2 этаж
от 14 308 000 ₽
→
Проект C-204-1S
2 этаж
от 4 026 286 ₽
→
На сайт застройщика