Перейти к контенту
Подбор и сравнение проектов домов от застройщиков Московской области
Подборщик домов
Калькулятор сметы
Калькулятор площади
Форум
Блог
Главная
›
Каталог проектов
›
Проект N-243-1K
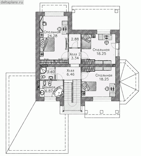
Проект N-243-1K
Застройщик: Юникс-Строй
243.0 м²
1 / 3
🏠
243.0 м²
📐
2 этаж
🧱
Кирпич
Похожие проекты
Похожие по цене
Похожие по площади
Дом в стиле барнхаус «Арлон»
4 спальн. · 2 санузл. · 2 этаж
от 19 920 000 ₽
→
Проект дома «Medford»
3 спальн. · 4 санузл.
от 19 910 000 ₽
→
Проект дома «Medford»
3 спальн. · 4 санузл.
от 19 910 000 ₽
→
Дом Лазаревское из газобетона: заказать в Москве по низкой цене
3 спальн. · 2 санузл. · 2 этаж
от 12 680 000 ₽
→
Дом Лазаревское из кирпича: заказать в Москве по низкой цене
3 спальн. · 2 санузл. · 2 этаж
от 12 680 000 ₽
→
Дом из кирпича Проект КД-9
3 спальн. · 2 санузл.
от 420 000 ₽
→
На сайт застройщика