Перейти к контенту
Подбор и сравнение проектов домов от застройщиков Московской области
Подборщик домов
Калькулятор сметы
Калькулятор площади
Форум
Блог
Главная
›
Каталог проектов
›
Проект N-260-1P
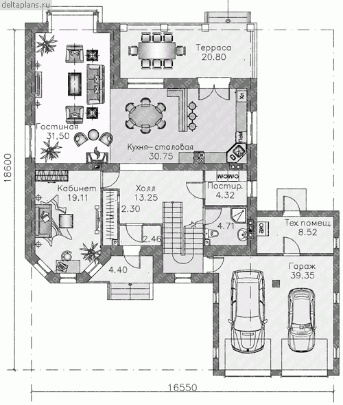
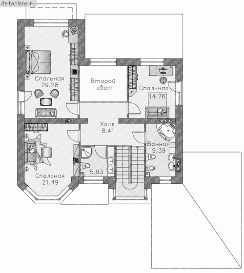
Проект N-260-1P
Застройщик: Юникс-Строй
260.2 м²
1 / 3
🏠
260.2 м²
📐
2 этаж
🧱
Пеноблок
Похожие проекты
Похожие по цене
Похожие по площади
Проект дома из газоблоков 18х16 ГББ-312: цена 12147000 руб.
5 спальн. · 3 санузл. · 2 этаж
от 18 211 000 ₽
→
Дом из газобетонных блоков С-430 ГБ «Солано»
5 спальн. · 4 санузл. · 2 этаж
от 18 211 000 ₽
→
Дом из керамических блоков С-430 КЕ «Солано»
5 спальн. · 4 санузл. · 2 этаж
от 18 211 000 ₽
→
Проект U-267-1K
2 этаж
от 21 336 400 ₽
→
Проект U-294-1K
2 этаж
от 21 327 380 ₽
→
Проект U-262-1K
2 этаж
от 21 346 240 ₽
→
На сайт застройщика