Перейти к контенту
Подбор и сравнение проектов домов от застройщиков Московской области
Подборщик домов
Калькулятор сметы
Калькулятор площади
Форум
Блог
Главная
›
Каталог проектов
›
Проект N-309-1P
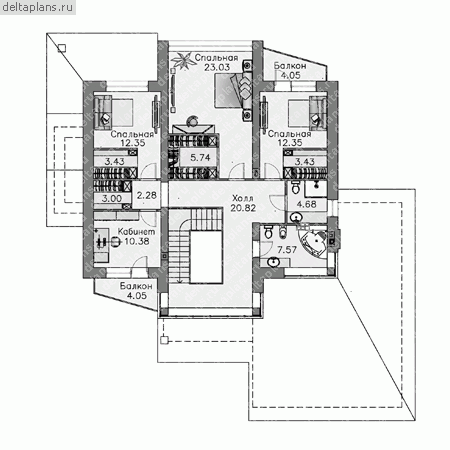
Проект N-309-1P
Застройщик: Юникс-Строй
309.9 м²
1 / 3
🏠
309.9 м²
📐
2 этаж
🧱
Пеноблок
Похожие проекты
Похожие по цене
Похожие по площади
Проект T-309-1P
2 этаж
от 21 693 000 ₽
→
Проект дома M-310-1P
3 этаж
от 21 693 000 ₽
→
Проект U-265-1K
2 этаж
от 21 691 460 ₽
→
Проект T-309-1P
2 этаж
от 21 693 000 ₽
→
Проект дома M-310-1P
3 этаж
от 21 693 000 ₽
→
Проект дома из газоблоков 19х12 ГББ-310: цена 12001000 руб.
5 спальн. · 4 санузл. · 2 этаж
от 18 994 000 ₽
→
На сайт застройщика