Перейти к контенту
Подбор и сравнение проектов домов от застройщиков Московской области
Подборщик домов
Калькулятор сметы
Калькулятор площади
Форум
Блог
Главная
›
Каталог проектов
›
Проект Q-069-1D
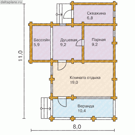
Проект Q-069-1D
Застройщик: Юникс-Строй
69.0 м²
1 / 2
🏠
69.0 м²
📐
1 этаж
🧱
Дерево
Похожие проекты
Похожие по цене
Похожие по площади
Проект одноэтажного дома с террасой Riven max-118 м² из газоблока — Домострой
4 спальн. · 2 санузл. · 1 этаж
от 10 350 000 ₽
→
Проект одноэтажного дома "Волочаново" из бруса
3 спальн. · 2 этаж
от 10 349 892 ₽
→
Проект одноэтажного коттеджа "Ясна" из газобетона
4 спальн. · 2 этаж
от 10 349 000 ₽
→
Проект одноэтажного дома "Малыш" из бруса
2 этаж
от 8 065 012 ₽
→
Проект каркасного дома КП-81
1 этаж
от 4 050 000 ₽
→
Строительство каркасного дома 9х9 "Абрамс" под ключ
3 спальн. · 2 санузл. · 1 этаж
от 3 445 000 ₽
→
На сайт застройщика