Перейти к контенту
Подбор и сравнение проектов домов от застройщиков Московской области
Подборщик домов
Калькулятор сметы
Калькулятор площади
Форум
Блог
Главная
›
Каталог проектов
›
Проект R-161-1P
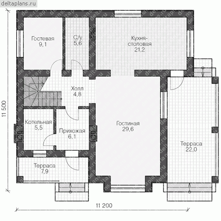
Проект R-161-1P
Застройщик: Юникс-Строй
161.38 м²
1 / 3
🏠
161.38 м²
📐
2 этаж
🧱
Пеноблок
Похожие проекты
Похожие по цене
Похожие по площади
Проект К-232 17 на 10, площадью 338 за 11 293 500 руб
7 спальн. · 2 этаж
от 11 293 500 ₽
→
Проект двухэтажного дома "Уголок-М3" из бруса
4 спальн. · 2 этаж
от 11 303 679 ₽
→
Проект дома из керамоблоков 12х9 ТКБ-138: цена 6370000 руб.
4 спальн. · 2 санузл. · 2 этаж
от 11 306 000 ₽
→
Дом из клееного бруса «Московский» | ЭкоТех
5 спальн. · 2 санузл. · 2 этаж
от 9 897 000 ₽
→
Проект дома из газоблоков 11х11 ГББ-163: цена 7049000 руб.
5 спальн. · 2 санузл. · 2 этаж
от 11 210 000 ₽
→
Проект дома из керамоблоков 11х11 ТКБ-163: цена по запросу
5 спальн. · 2 санузл. · 2 этаж
от 12 230 000 ₽
→
На сайт застройщика