Перейти к контенту
Подбор и сравнение проектов домов от застройщиков Московской области
Подборщик домов
Калькулятор сметы
Калькулятор площади
Форум
Блог
Главная
›
Каталог проектов
›
Проект R-193-1P
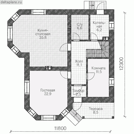
Проект R-193-1P
Застройщик: Юникс-Строй
191.31 м²
1 / 3
🏠
191.31 м²
📐
2 этаж
🧱
Пеноблок
Похожие проекты
Похожие по цене
Похожие по площади
Проект A-305-1P
2 этаж
от 13 395 900 ₽
→
Проект двухэтажного дома "Дуэт 2" из бруса
3 спальн. · 2 этаж
от 13 385 405 ₽
→
Проект дома из керамоблоков 16х15 ТКБ-174: цена 9855000 руб.
5 спальн. · 1 санузл. · 1 этаж
от 13 406 000 ₽
→
Проект R-191-1K
2 этаж
от 15 684 140 ₽
→
Проект A-305-1P
2 этаж
от 13 395 900 ₽
→
AS-1302
2 этаж
от 7 828 000 ₽
→
На сайт застройщика