Перейти к контенту
Подбор и сравнение проектов домов от застройщиков Московской области
Подборщик домов
Калькулятор сметы
Калькулятор площади
Форум
Блог
Главная
›
Каталог проектов
›
Проект R-194-1P
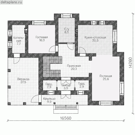
Проект R-194-1P
Застройщик: Юникс-Строй
194.0 м²
1 / 3
🏠
194.0 м²
📐
2 этаж
🧱
Пеноблок
Похожие проекты
Похожие по цене
Похожие по площади
Проект V-194-1P
2 этаж
от 13 580 000 ₽
→
Проект одноэтажного дома "Сахара" из бруса
2 спальн. · 2 этаж
от 13 579 214 ₽
→
Проект дома G-194-1P
2 этаж
от 13 573 000 ₽
→
Проект двухэтажного дома "Ирина" из бруса
7 спальн. · 2 этаж
от 13 440 607 ₽
→
Проект одноэтажного дома "Митино" из бруса
4 спальн. · 2 этаж
от 12 883 382 ₽
→
Проект одноэтажного коттеджа "Родные пенаты" из газобетона
4 спальн. · 2 этаж
от 11 639 000 ₽
→
На сайт застройщика