Перейти к контенту
Подбор и сравнение проектов домов от застройщиков Московской области
Подборщик домов
Калькулятор сметы
Калькулятор площади
Форум
Блог
Главная
›
Каталог проектов
›
Проект R-196-1K
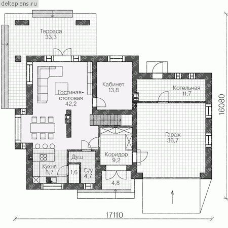
Проект R-196-1K
Застройщик: Юникс-Строй
196.0 м²
1 / 3
🏠
196.0 м²
📐
2 этаж
🧱
Кирпич
Похожие проекты
Похожие по цене
Похожие по площади
Проект дома из газоблоков 12х16 ГББ-261: цена 10429000 руб.
5 спальн. · 4 санузл. · 2 этаж
от 16 069 000 ₽
→
Проект L-230-1P
2 этаж
от 16 081 800 ₽
→
Проект A-223-1P
2 этаж
от 16 083 900 ₽
→
Проект одноэтажного каркасного дома "Петерсен"
2 этаж
от 13 944 554 ₽
→
Дом по проекту «ЗС 28-15» - Золотое Сечение
4 спальн. · 2 санузл.
от 24 500 000 ₽
→
Проект К-150 14 на 7, площадью 196 за 6 541 500 руб
4 спальн. · 2 этаж
от 6 541 500 ₽
→
На сайт застройщика