Перейти к контенту
Подбор и сравнение проектов домов от застройщиков Московской области
Подборщик домов
Калькулятор сметы
Калькулятор площади
Форум
Блог
Главная
›
Каталог проектов
›
Проект R-196-1P
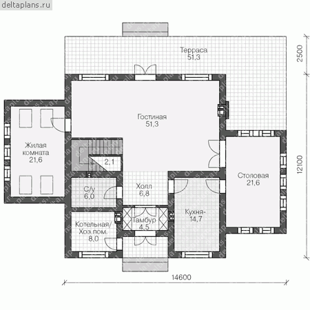
Проект R-196-1P
Застройщик: Юникс-Строй
196.2 м²
1 / 3
🏠
196.2 м²
📐
2 этаж
🧱
Пеноблок
Похожие проекты
Похожие по цене
Похожие по площади
Кирпичный дом С-298 К «Созвездие»
5 спальн. · 2 санузл. · 2 этаж
от 13 736 000 ₽
→
Проект U-198-2P
2 этаж
от 13 748 000 ₽
→
Проект дома V-196-1P
2 этаж
от 13 748 000 ₽
→
Проект каркасного дома КП-184
2 этаж
от 12 650 000 ₽
→
Проект одноэтажного дома "Елисей" из бруса
4 спальн. · 2 этаж
от 12 458 827 ₽
→
Проект двухэтажного дома "Ривьера" из бруса
5 спальн. · 2 этаж
от 14 196 226 ₽
→
На сайт застройщика