Перейти к контенту
Подбор и сравнение проектов домов от застройщиков Московской области
Подборщик домов
Калькулятор сметы
Калькулятор площади
Форум
Блог
Главная
›
Каталог проектов
›
Проект R-216-1K
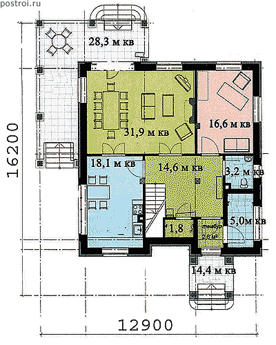
Проект R-216-1K
Застройщик: Юникс-Строй
216.0 м²
1 / 3
🏠
216.0 м²
📐
2 этаж
🧱
Кирпич
Похожие проекты
Похожие по цене
Похожие по площади
Проект дома «Homestead»
2 спальн. · 4 санузл.
от 17 715 000 ₽
→
Проект дома «Homestead»
2 спальн. · 4 санузл.
от 17 715 000 ₽
→
Проект двухэтажного дома "Ренессанс" из бруса
5 спальн. · 2 этаж
от 17 720 801 ₽
→
Проект двухэтажного коттеджа "Ла Каса-1" из бруса
8 спальн. · 3 этаж
от 17 040 770 ₽
→
Проект К-205 9 на 12, площадью 216 за 7 209 000 руб
4 спальн. · 2 этаж
от 7 209 000 ₽
→
Проект К-205 9 на 12, площадью 216 за 7 209 000 руб
4 спальн. · 2 этаж
от 6 048 000 ₽
→
На сайт застройщика