Перейти к контенту
Подбор и сравнение проектов домов от застройщиков Московской области
Подборщик домов
Калькулятор сметы
Калькулятор площади
Форум
Блог
Главная
›
Каталог проектов
›
Проект R-240-1K
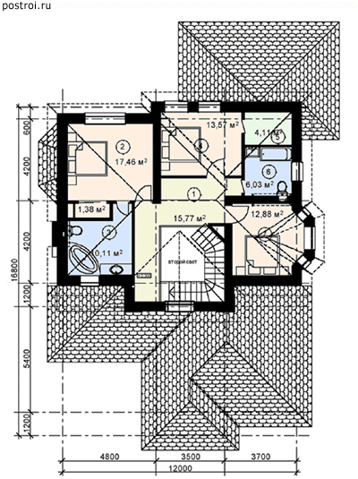
Проект R-240-1K
Застройщик: Юникс-Строй
240.0 м²
1 / 3
🏠
240.0 м²
📐
2 этаж
🧱
Кирпич
Похожие проекты
Похожие по цене
Похожие по площади
Проект «Suzdal»
4 спальн. · 3 санузл.
от 19 700 000 ₽
→
Коттедж в стиле Хай-Тек «Розас» с комбинированным фасадом
3 спальн. · 3 санузл. · 2 этаж
от 19 650 000 ₽
→
Проект U-281-1P
2 этаж
от 19 712 700 ₽
→
Дом из газобетона Проект ГБ-226
3 спальн. · 2 санузл. · 2 этаж
от 8 339 000 ₽
→
Дом из газобетона Проект ГБ-239
3 спальн. · 2 санузл.
от 8 019 000 ₽
→
Дом из газобетона Проект ГБ-241
3 спальн. · 2 санузл.
от 8 019 000 ₽
→
На сайт застройщика