Перейти к контенту
Подбор и сравнение проектов домов от застройщиков Московской области
Подборщик домов
Калькулятор сметы
Калькулятор площади
Форум
Блог
Главная
›
Каталог проектов
›
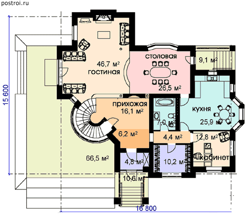
Проект R-490-1K
Проект R-490-1K
Застройщик: Юникс-Строй
490.0 м²
1 / 4
🏠
490.0 м²
📐
3 этаж
🧱
Кирпич
Похожие проекты
Похожие по цене
Похожие по площади
Дом по проекту «ЗС 11-17-2» - Золотое Сечение
3 спальн. · 2 санузл.
от 40 125 000 ₽
→
Дом по проекту «ЗС 11-17» - Золотое Сечение
4 спальн. · 3 санузл.
от 40 125 000 ₽
→
Проект «Blackwood»
5 спальн. · 7 санузл. · 2 этаж
от 40 070 000 ₽
→
Проект двухэтажного дома "Белый шум" из бруса
6 спальн. · 2 этаж
от 32 044 064 ₽
→
Проект U-491-1P
3 этаж
от 34 365 100 ₽
→
Проект U-488-1K
3 этаж
от 40 032 400 ₽
→
На сайт застройщика