Перейти к контенту
Подбор и сравнение проектов домов от застройщиков Московской области
Подборщик домов
Калькулятор сметы
Калькулятор площади
Форум
Блог
Главная
›
Каталог проектов
›
Проект R-550-1K
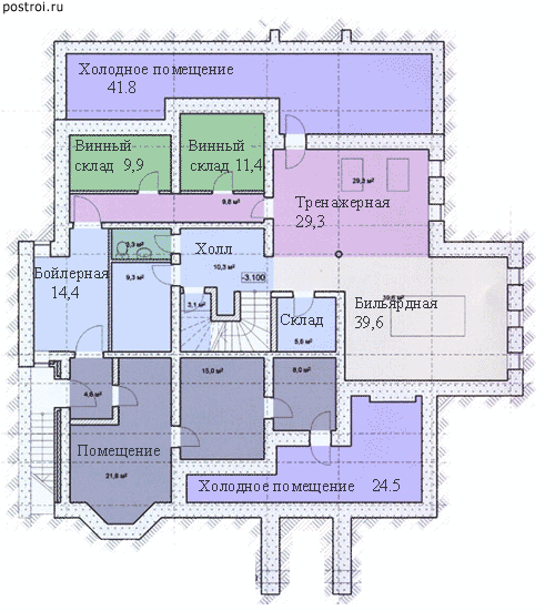
Проект R-550-1K
Застройщик: Юникс-Строй
550.0 м²
1 / 4
🏠
550.0 м²
📐
3 этаж
🧱
Кирпич
Похожие проекты
Похожие по цене
Похожие по площади
Большой дом с бассейном «Принстон»
6 спальн. · 7 санузл. · 2 этаж
от 45 210 000 ₽
→
Проект R-551-1K
3 этаж
от 45 214 800 ₽
→
Резиденция с гаражом на 4 машины «Митчел»
5 спальн. · 6 санузл. · 2 этаж
от 45 252 000 ₽
→
Проект R-551-1K
3 этаж
от 45 214 800 ₽
→
Проект дома J-548-1P
2 этаж
от 38 346 000 ₽
→
Проект V-547-1K
3 этаж
от 44 886 800 ₽
→
На сайт застройщика