Перейти к контенту
Подбор и сравнение проектов домов от застройщиков Московской области
Подборщик домов
Калькулятор сметы
Калькулятор площади
Форум
Блог
Главная
›
Каталог проектов
›
Проект S-1103-1K
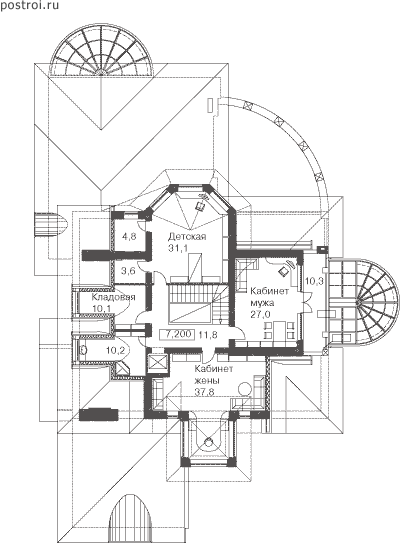
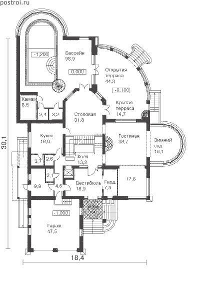
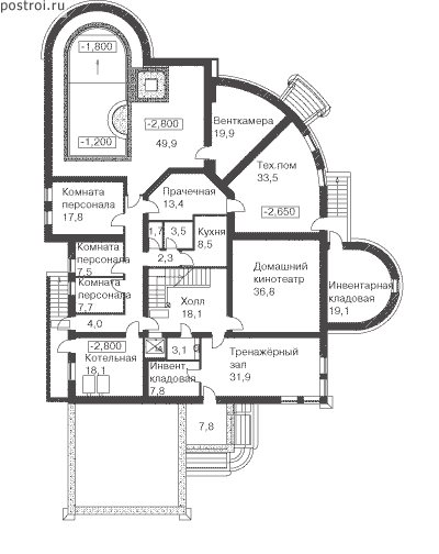
Проект S-1103-1K
Застройщик: Юникс-Строй
1102.8 м²
1 / 5
🏠
1102.8 м²
📐
3 этаж
🧱
Кирпич
Похожие проекты
Похожие по цене
Похожие по площади
Проект S-1080-1K
3 этаж
от 88 592 800 ₽
→
Проект T-1068-2K
3 этаж
от 87 576 000 ₽
→
Проект S-1143-1K
3 этаж
от 93 726 000 ₽
→
Проект S-1080-1K
3 этаж
от 88 592 800 ₽
→
Проект T-1068-2K
3 этаж
от 87 576 000 ₽
→
Двухэтажная резиденция «Портленд»
3 спальн. · 6 санузл. · 2 этаж
от 63 900 000 ₽
→
На сайт застройщика