Перейти к контенту
Подбор и сравнение проектов домов от застройщиков Московской области
Подборщик домов
Калькулятор сметы
Калькулятор площади
Форум
Блог
Главная
›
Каталог проектов
›
Проект S-165-1K
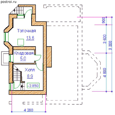
Проект S-165-1K
Застройщик: Юникс-Строй
165.1 м²
1 / 4
🏠
165.1 м²
📐
3 этаж
🧱
Кирпич
Похожие проекты
Похожие по цене
Похожие по площади
Проект I-165-1K
2 этаж
от 13 538 200 ₽
→
Проект дома I-191-1P
2 этаж
от 13 538 000 ₽
→
Проект дома U-187-1P
2 этаж
от 13 533 800 ₽
→
Проект I-165-1K
2 этаж
от 13 538 200 ₽
→
Проект I-166-1D
2 этаж
от 24 765 000 ₽
→
Проект одноэтажного дома "Волочаново" из бруса
3 спальн. · 2 этаж
от 10 349 892 ₽
→
На сайт застройщика