Перейти к контенту
Подбор и сравнение проектов домов от застройщиков Московской области
Подборщик домов
Калькулятор сметы
Калькулятор площади
Форум
Блог
Главная
›
Каталог проектов
›
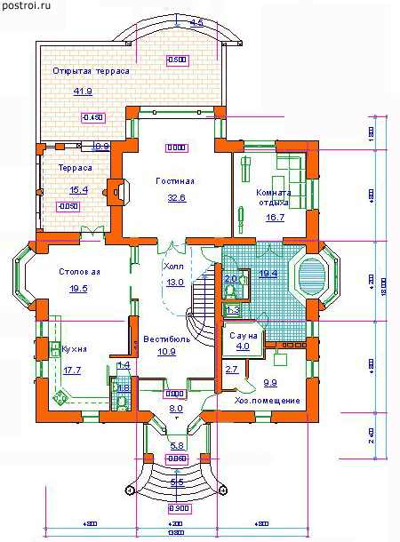
Проект S-453-2K
Проект S-453-2K
Застройщик: Юникс-Строй
453.2 м²
1 / 4
🏠
453.2 м²
📐
3 этаж
🧱
Кирпич
Похожие проекты
Похожие по цене
Похожие по площади
Проект G-453-1K
3 этаж
от 37 154 200 ₽
→
Проект S-452-1K
3 этаж
от 37 146 000 ₽
→
Проект G-247-1D
2 этаж
от 37 138 500 ₽
→
Проект G-453-1K
3 этаж
от 37 154 200 ₽
→
Современный коттедж с комбинированным фасадом «Ламия»
2 спальн. · 3 санузл. · 2 этаж
от 27 180 000 ₽
→
Проект S-452-1K
3 этаж
от 37 146 000 ₽
→
На сайт застройщика