Перейти к контенту
Подбор и сравнение проектов домов от застройщиков Московской области
Подборщик домов
Калькулятор сметы
Калькулятор площади
Форум
Блог
Главная
›
Каталог проектов
›
Проект S-464-1K
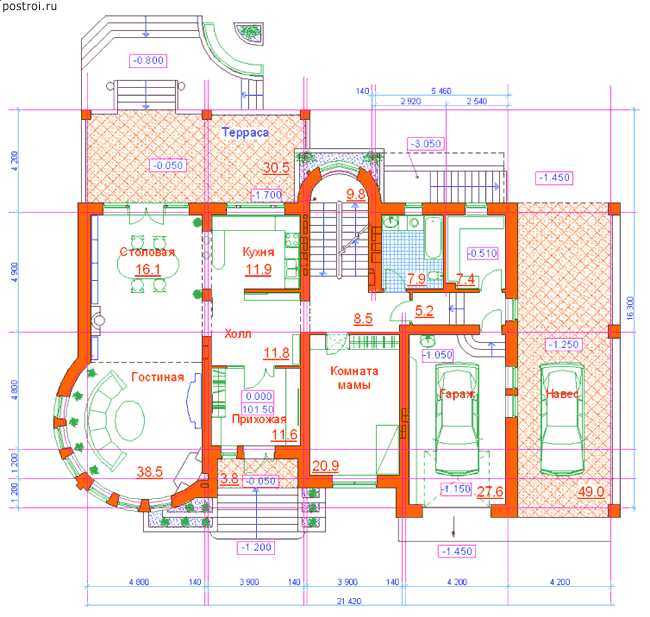
Проект S-464-1K
Застройщик: Юникс-Строй
464.3 м²
1 / 4
🏠
464.3 м²
📐
3 этаж
🧱
Кирпич
Похожие проекты
Похожие по цене
Похожие по площади
Проект S-465-1K
2 этаж
от 38 105 400 ₽
→
Проект U-542-1P
2 этаж
от 37 982 000 ₽
→
Проект J-462-1K
3 этаж
от 37 949 600 ₽
→
Проект двухэтажного коттеджа "Мамоново" из газобетона
6 спальн. · 3 этаж
от 19 187 000 ₽
→
Проект S-465-1K
2 этаж
от 38 105 400 ₽
→
Проект «Tracy»
6 спальн. · 5 санузл. · 2 этаж
от 23 160 000 ₽
→
На сайт застройщика