Перейти к контенту
Подбор и сравнение проектов домов от застройщиков Московской области
Подборщик домов
Калькулятор сметы
Калькулятор площади
Форум
Блог
Главная
›
Каталог проектов
›
Проект S-507-1K
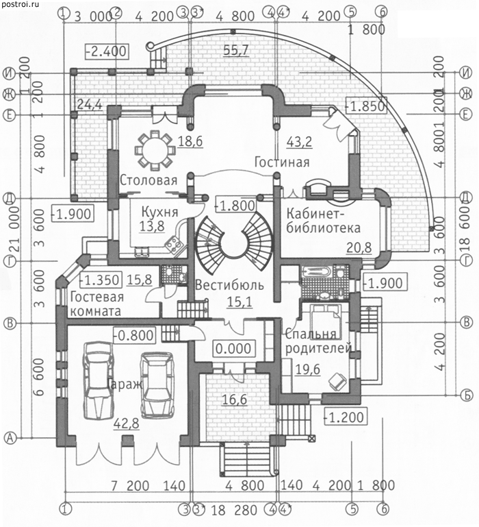
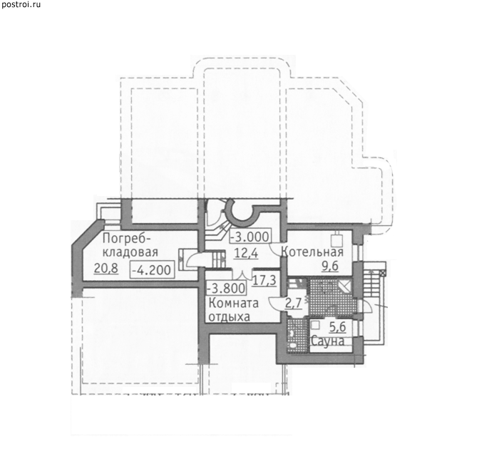
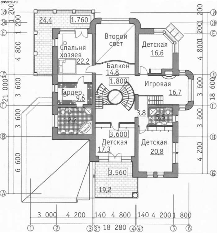
Проект S-507-1K
Застройщик: Юникс-Строй
507.5 м²
1 / 4
🏠
507.5 м²
📐
3 этаж
🧱
Кирпич
Похожие проекты
Похожие по цене
Похожие по площади
Проект G-508-1K
3 этаж
от 41 623 200 ₽
→
Проект трехэтажного каркасного дома "Рудные просторы"
10 спальн. · 3 этаж
от 41 563 500 ₽
→
Большой дом с гаражом на 4 машины «Моэн»
3 спальн. · 4 санузл. · 2 этаж
от 41 670 000 ₽
→
Проект G-508-1K
3 этаж
от 41 623 200 ₽
→
Дом Большое Петровское из газобетона: заказать в Москве по низкой цене
4 спальн. · 5 санузл. · 2 этаж
от 19 600 000 ₽
→
Дом Большое Петровское из кирпича: заказать в Москве по низкой цене
4 спальн. · 5 санузл. · 2 этаж
от 19 600 000 ₽
→
На сайт застройщика